当前位置:首页 > 民俗文化

柚米寓 社区改造风暴—旭辉柚米寓,花漾生态圈

卸下半衰期袋,把世界关在外面,

简单,生活,温暖,依赖,从此你是锦瑟,我是流年

拆开半条命的行李,尘世间关在门外,

简单的生活温暖依赖,

从那时起,你是金瑟,我为不安

-白洛梅

广州番禺万博店是上海徐汇於陵旗下的优质青年公寓品牌。这是一个集生活、社交、娱乐、办公和社区市场于一体的综合社区,致力于建立一个链接生活租赁生态系统。

吉田概念与徐汇於陵再次合作,在番禺打造新住宅,开启柚米转型新篇章。

一个

柚子米饭展示

现场+创意,碰撞烟火

城市发展的快速步伐使得现代时尚白领、新潮青年、科技人才等群体追求更加舒适自然的生活方式。柚子饭作为一个综合性的公寓住宅,容纳了居住者的个体需求,正好符合千禧一代的理想。

外观方案设计

彩色走廊增加观光电梯,方便租户日常出入。

公共大堂-娱乐

事件

公共区域平面

效果图

公共区大堂包括前台接待、休闲区、娱乐区、路演区、书吧区、健身区六个板块,集休闲、娱乐、接待为一体。

设计是各种风格的组合,精致简洁,有着美丽青春的色彩涂鸦,活跃在空之间,更有标记。

线条、色彩、艺术品都是柚饭的标签,包容了我们偏执和热爱的一切

在家具的选择上,以皮革、木材、金属为主,搭配轻盈与轻盈、沉稳与活力的奇妙冲突。

墙地砖的连接打破了刻板的空形式,而有趣的彩色涂鸦不经意间有一种装酷的暗示,诠释了年轻人大胆前卫的生活方式。

公共区域平面

空房间保持干净明亮的整体风格,充满温暖和谐的宜人氛围。

电影展示了多种多样的生活方式,柚子饭也是如此

空,逐层递进,分区精细,满足不同场景的需求。

生动有趣的小饰品精心挑选,颜色和材质与公共区域的色调一致。

公共区域的设计,以色块+金属元素为主,整体色彩青春活泼。金属材料的使用增强了空之间的整体质感。

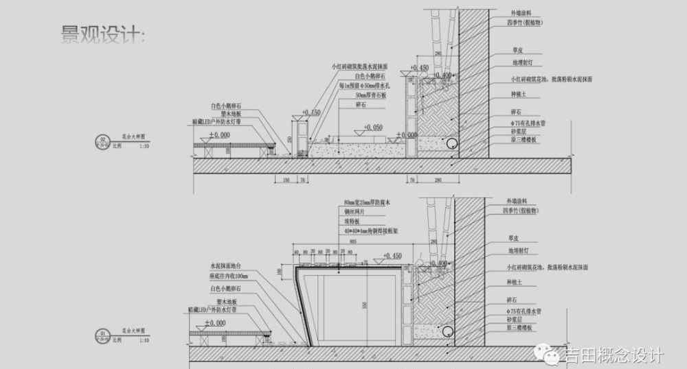
平台风景-社交

在原有三层户外平台的基础上,规划新的景观小品,增加户外休闲功能,为租户提供户外休闲场所。

好像时间还在这里交个三五天的朋友,享受一下月下的凉爽。

用心创造,处处有惊喜

穿过梦幻童话走廊,回到自己的世界

单元a-住宅

A型公寓以灰色为基调,以紫灰色+原木色进行装饰,搭配林系编织的软装装饰,安静而文艺。

阳光普照的时候有一种安慰,这一刻的心情也随着这种氛围慢慢平静

无论世界如何变化,我们总是自然温暖,回归自然

业余时间涂鸦,笔尖就是生活

柔和的光线让人身心愉悦,在宁静的午后,过着自由自在的生活

生活与距离,无缝冬夏

b型

蓝灰色背景,主题摆件,公寓B整体简约大气。

天然木质元素和厚实的素面床品带来温暖和舒适

感觉

对于年轻人来说,除了舒适的休息,家还有更深的意义

正义——它自己的生命

用空包裹的思想,抵御永无止境的喧嚣尘世。

愿每一个平淡的日子都充满温暖

柚饭前期

创意+头脑,打造心灵居所

场景照片

原建筑原名员工宿舍,U型镜楼整体量大,固有面积优势好,可玩性强;但建筑外墙砖老化发黑,看起来很旧;整体建筑风格毫无特色,略显枯燥,单一。

外观方案设计

外观上,以灰色为基调,结合柚饭屋品牌的橙白色作为点缀,原有墙面焕然一新;大大提升建筑整体风格。

平台方案设计

再利用U型建筑闲置空,一侧作为租户集中晾晒区,另一侧作为租户举办户外聚会、烧烤等休闲区。

园林设计

大堂多边形花坛的设计让互动平台更加灵活。

走廊方案设计

原建筑三层以上的两栋U型建筑由中间走廊连接。在设计中,走廊原有结构采用钢结构加固,然后增加观光电梯。电梯井空上方的钢结构采用玻璃屋顶加固,防风防雨,增加设备使用寿命。

走廊方案设计

原建筑周边公共走廊拆除改建,平面布局重新划分。同时,将两个公共走廊重新定位,合并为室内走廊,最大限度地优化室内使用面积。

总体总结和反思/思想太阳搜索

1.设计前考虑和调查的重要性

在工程设计的早期,需要仔细勘察现场,检查机电管道的原始位置。对项目现状了解越清楚,设计方案落地和老套程度越强,施工过程中返工率越少;对于前期投资预算来说,可以有效控制设计的关键内容,把钱花在刀刃上,既能产生效果,又能节约成本。

2.不同的空房间都是硬包装的,以创造关键点

根据不同空,应考虑用户的不同需求:

1.房间需要安静,功能区的收纳区需要更加齐全。比如卫生间要尽量分干湿区,操作台要考虑洗切煎的动线,考虑空的收纳。

2.公共区域需要动静结合,互动功能明显。还需要考虑不同功能的空的集成和分离,统一一个区域可以合并的功能,合理划分角落的独立空,方便不同场景的共同使用。

3.同层排水平面布置要点

本项目下已经有商铺在运营,所以商铺上层设置为同层排水,方便楼下正常运营。同层排水的设置,首先要明确有多少个落水点,然后分区域规划平面,每个区域一个落水点,最后确定下管所需的找坡高度和找坡后的完工面高度。管道运行位置应尽可能位于厨房卫生间区域,房间前端可局部抬高,即卫生间厨房前厅区域,以保持房间休息和睡眠区域原有的房间高度,视觉感更宽,抬高面积相对较小,成本相对较低。

透露这一消息的收养者将获得一份大奖

最近的活动

11月28-30日,同一公寓精英店长进修课程

1.《柚米寓 社区改造风暴—旭辉柚米寓,花漾生态圈》援引自互联网,旨在传递更多网络信息知识,仅代表作者本人观点,与本网站无关,侵删请联系页脚下方联系方式。

2.《柚米寓 社区改造风暴—旭辉柚米寓,花漾生态圈》仅供读者参考,本网站未对该内容进行证实,对其原创性、真实性、完整性、及时性不作任何保证。

3.文章转载时请保留本站内容来源地址,https://www.lu-xu.com/guoji/1603122.html

上一篇

华南农业珠江学院 华农珠江学院要在全国出名了!

下一篇

我是先生 我是先生-画

广西撤销自治区改省 广东与广西的区域调整,广东省5个县,为何被划入了广西?

  • 广西撤销自治区改省 广东与广西的区域调整,广东省5个县,为何被划入了广西?
  • 广西撤销自治区改省 广东与广西的区域调整,广东省5个县,为何被划入了广西?
  • 广西撤销自治区改省 广东与广西的区域调整,广东省5个县,为何被划入了广西?

大气污染物综合排放标准 发布《区域性大气污染物综合排放标准》等三项地方标准,自2019年11月1日起实施

  • 大气污染物综合排放标准 发布《区域性大气污染物综合排放标准》等三项地方标准,自2019年11月1日起实施
  • 大气污染物综合排放标准 发布《区域性大气污染物综合排放标准》等三项地方标准,自2019年11月1日起实施
  • 大气污染物综合排放标准 发布《区域性大气污染物综合排放标准》等三项地方标准,自2019年11月1日起实施

今日威远 定了!住在这片区域的威远人有福了……赶紧看看有没有你的份?

  • 今日威远 定了!住在这片区域的威远人有福了……赶紧看看有没有你的份?
  • 今日威远 定了!住在这片区域的威远人有福了……赶紧看看有没有你的份?
  • 今日威远 定了!住在这片区域的威远人有福了……赶紧看看有没有你的份?

人肉椅 孕妇排队产检时不舒服,走廊上却无人让座,丈夫弯腰当人肉椅子

  • 人肉椅 孕妇排队产检时不舒服,走廊上却无人让座,丈夫弯腰当人肉椅子
  • 人肉椅 孕妇排队产检时不舒服,走廊上却无人让座,丈夫弯腰当人肉椅子
  • 人肉椅 孕妇排队产检时不舒服,走廊上却无人让座,丈夫弯腰当人肉椅子

岔路口二手房 江宁岔路口新添稀缺纯宅地,区域房荒已久,二手房价几乎没涨

  • 岔路口二手房 江宁岔路口新添稀缺纯宅地,区域房荒已久,二手房价几乎没涨
  • 岔路口二手房 江宁岔路口新添稀缺纯宅地,区域房荒已久,二手房价几乎没涨
  • 岔路口二手房 江宁岔路口新添稀缺纯宅地,区域房荒已久,二手房价几乎没涨

深圳商标专利 深圳商标专利现在还补贴吗?政策早知道!附广东其他区域补贴政策

2019年5月15日,深圳国际商标补贴申请窗口突然关闭,官方回复是暂停还是取消补贴。目前,最新的政策咨询草案及其通过情况已经公布。虽然官方文件还没有出台,但是我们已经可以看到具体的补贴情况了。 让我们谈谈被问得最多、最受关注的政策: 1.深圳公司或个人注册国际商标有补贴吗? 是的。只是补贴...

厵 原乡厵田园综合体告诉你,纳入区域整体发展的艺术!

  • 厵 原乡厵田园综合体告诉你,纳入区域整体发展的艺术!
  • 厵 原乡厵田园综合体告诉你,纳入区域整体发展的艺术!
  • 厵 原乡厵田园综合体告诉你,纳入区域整体发展的艺术!

长三角区域规划 重磅!长三角一体化规划出炉!

  • 长三角区域规划 重磅!长三角一体化规划出炉!
  • 长三角区域规划 重磅!长三角一体化规划出炉!
  • 长三角区域规划 重磅!长三角一体化规划出炉!